В наличии на складе

Котёл КВа-7,55

Цена
2 100 000 р.
Доставляем Отопительные котлы
в г. Мурманск

Кратко о характеристиках

Отапливаемый объем, м³203850
Расход топлива, кг/ч884
Вид топкиГазоплотная топочная камера
ТопливоМазут

Котёл КВа-7,55 в Сыктывкаре предназначен для нагрева воды в целях отопления и горячего водоснабжения в открытых и закрытых системах. Может быть использован для обслуживания жилых домов и промышленных помещений. Работает на газе, дизеле и мазуте, совместим с большинством горелок и показывает КПД более 90%.

Характеристики

Аэродинамическое сопротивление, Па (мм. вод. ст.)
210
Конвективная поверхность нагрева, м²
146.8
Цена, руб.
2100000
КПД, не менее, %
92
Масса котла (без воды), кг
7800
Мощность (кВт), кВт
7550
Низшая теплота сгорания топлива, кКал/кг
8000
Площадь отопления, м²
75500
Отапливаемый объем, м³
203850
Радиационная поверхность нагрева, м²
57.1
Расход теплоносителя среды, м³/ч
260
Расход топлива, кг/ч
884
Расчетный срок службы, не менее, лет
10
Расход условного топлива, кг/ч
1011
Температура воды на входе в котёл, не менее, °C
60
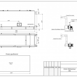
Габаритные размеры (ДхШ), мм
6700х2450х2950
Гидравлическое сопротивление при перепаде t, МПа (кгс/cм²)
0,08
Давление рабочей среды, МПа (кгс/cм²)
0,6
Класс котла
1
Номинальное разрежение в топке при работе, Па
20…60
Рабочий график, С 70/95
Температура уходящих газов, °C
170…250
Тяга
Естественная
Вид топки
Газоплотная топочная камера
Топливо
Мазут, Отработанное масло , Газ, Дизель
Содержание нормативных вредных выбросов
оксида углерода СО мг/м3 - 3600 оксида азота в пересчете на NO2, мг/м3 - 500 твердых частиц, кг/ч - 0,05
Тип
Ква
Марка
КВа-7,55
Комплект
Котёл КВа-7,55
Котёл КВа-7,55
1 штука
Запорная арматура
1 штука
Клапан предохранительный
1 штука
Клапан обратный
1 штука
Термометры в оправе
1 штука
Манометры
1 штука
Краны трехходовые Ду-15
1 штука
Вентили дренажные Ду-20
1 штука
Вентили воздушные Ду-15
1 штука
Как все происходит
на видео
Смотреть видео галерею
Возникли
вопросы?
Закажите консультацию
Или позвоните
8 (800) 551-45-60
Ответим на вопросы
Расскажем о скидках
Презентуем товар
Поможем выбрать
Доставляем Отопительные котлы
в г. Мурманск

Устройство и принцип работы

Котёл КВа-7,55 состоит из двух основных блоков: топки и конвективной камеры. Горелкой топливо направляется в камеру, сжигается, нагревая теплоноситель и трубопровод. Мощность работы горелки регулируется, что позволяет поддерживать стабильную температуру воды в трубах. Гидравлическая схема защищена от перегрева соприкасающихся с теплоносителем поверхностей, чем увеличивает срок службы изделия и избавляет от подготовки воды. Газы выходят из котла без дымососа, через трубу.

Водогрейный котёл КВа-7,55 имеет систему безопасности. На задней стенке расположен взрывной клапан, который защитит оборудование от поломки в случае скачка давления. Горелка оснащена автоматическим регулированием, которое поддерживает стабильное давление, прекращая подачу топлива при высоких показателях и увеличивая – при низких.

Особенности и преимущества

  • КПД более 90% обеспечивается большой топливной камерой, которая способствует полноценному сгоранию топлива и помогает рационально использовать горючее;
  • Минимальные затраты на горючее способствует экономичному использованию;
  • Устойчивость к образованию накипи образуется благодаря гидравлической схеме, предотвращающей застои и налипания, появление которых снизило бы КПД при длительном использовании котла;
  • Совместим с множеством горелок, позволяя при выборе ориентироваться на собственные нужны;
  • Автоматика безопасности сокращает вероятность поломки и увеличивает срок службы оборудования;
  • Автоматизация процесса делает работу котельной автономной и упрощает труд кочегара;
  • Низкие требования к качеству воды избавляют от необходимости подготавливать воду перед использованием;
  • Небольшой размер котла позволит уместить его даже в небольших котельных;
  • Минимальные монтажные работы сэкономят время и средства при установке котельного оборудования.

Размещение и установка

Котёл КВа-7,55 должен быть установлен специалистами. Котел имеет значительный вес, поэтому устанавливается только на пол, на специально подготовленную поверхность. Для установки котла не требуется заливать фундамент: котел ставится на раму и опоры, а опоры крепятся к подготовленной поверхности болтами. На фронтовую стенку котла крепится горелка. Устройство прибора предполагает целый ряд подходящих горелочных устройств разных производителей.

Эксплуатация и техническое обслуживание

Водогрейный котел КВа очень прост в эксплуатации. После монтажа котел подключается к водопроводной системе и начинает работу. Котёл КВа-7,55 полностью автономен, не требует специальной подготовки воды. Помимо простоты использования котел КВр имеет еще и более длительный срок службы, чем, например, простой бойлер.

Важно отметить, что производить ремонтные работы и техническое обслуживание могут только квалифицированные специалисты, имеющие специальное разрешение. При организации технического обслуживания следует учитывать требования «Правил устройства и безопасной эксплуатации паровых и водогрейных котлов».

Комплектация

Котёл КВа-7,55 доставляются в максимально собранном заводском виде и комплектуются всем необходимым для правильной установки прибора: запорной арматурой, контрольно-измерительными приборами и инструкцией по эксплуатации. Горелка в комплект не входит.

Схемы и чертежи
Следите за новостями в социальных сетях
Наши цифры
скажут за нас все
10
Срок эксплуатации оборудования – более десяти лет
20
Двадцать лет
трудимся для вас
10
Меньше десяти дней
на изготовление товара
500
Более пятисот
точек поставки
Вы смотрели